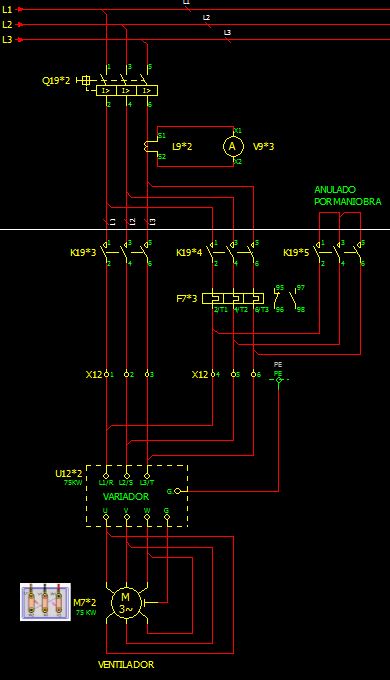
Hola, quiero hacer una prueba rapida momentanea de un motor de 75Kw con un variador de frecuencia, que actualmente esta con un circuito estrella-triangulo, mi idea es la siguiente, intercalarlo en la salida de bornes del cuadro, primero anularia el mando del contactor de estrella, soltaria el motor de bornes del cuadro y del motor, e identificaria los hilos para doblar fases de 2 en 2 y los conectaria a la salida del variador, luego identificaria las fases de bornes de salida del cuadro a los contactores de linea y de triangulo y cablearia 6 hilos de estos bornes a la entrada del variador poniendo 2 por fase (1 del que viene del contactor de linea y otro del contactor de triangulo que por supuesto deben ser la misma fase). Pondria tambien las planchas en bornas de motor para triangulo ( aqui tengo una pregunta, mas por curiosidad que por otra cosa, que discuti con un compañero, me dijo que no hacia falta poner las planchas porque realmente ya estan hechas al doblar las lineas en el lado del variador, cosa que es cierta, pero hace años alguien en un curso sobre variadores me dijo que era necesario, por algun motivo que no recuerdo, y no le he podido argumentar el porque, no se si seria por un tema de impedancias de los cables por distancia) .
Una cosa, en la salida del contactor de linea o en de triangulo,no recuerdo. tengo un rele termico, no creo que tenga que haber ningun problema, ya que se repartira la mitad de la intensidad entre los 6 cables que van hacia bornes y entrada del variador.
Arrancaria el estrella triangulo (por supuesto no haria nada el de estrella, por estar anulado) y esperaria al cambio a triangulo (o bajaria el temporizador al minimo) para disponer de toda la intensidad hacia la entrada del variador y seguidamente ya podria dar run para mover el motor.
Que opinais de la forma de relializarlo
Saludos,





