Buenos dias,
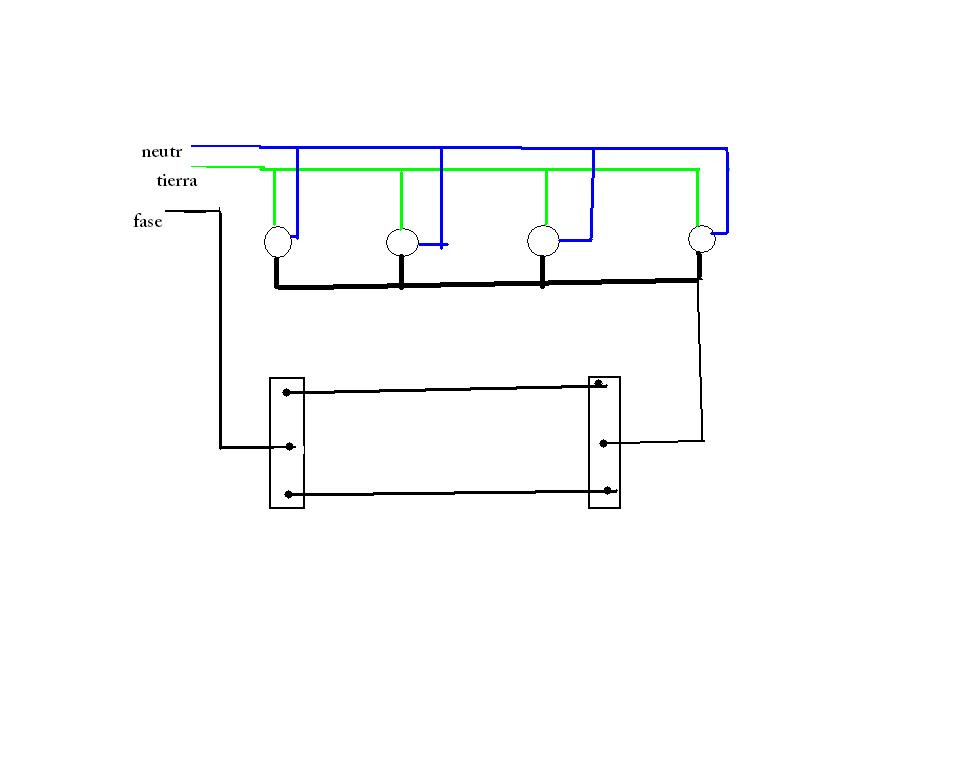
Alguien me puede ayudar explicandome como tengo que conectar 4 lámparas que se enciendan a la vez con dos conmutadores, de maenra que pueda encender o apagar la luz con cualquiera de ellos y se enciendan todas las lamparas. Me estoy haciendo un lio y ya no se que más puedo probar.
Muchas gracias!!





